本文の始まりです

E様邸(北九州市)

外観
キューブスタイルはお客様の絶対のこだわりでした。

玄関
暗くなりがちな玄関も、窓があるとこんなに明るくなります。

LDK1
18帖ある広々LDKです。「広いLDKの家」が新築時の1番のご要望でした。


LDK2
木目調のクロスを貼り、アクセントにしました。

キッチン1
ホワイトでまとめたキッチンと背面収納です。勝手口と窓で明るさが増します。

キッチン2
シンク上部の吊り戸を取り、圧迫感を無くしました。


洗面脱衣室
奥様の家事動線を考え、洗面脱衣所と浴室はリビング横に配置しました。

浴室
ゆったり一坪サイズのお風呂です。まだ幼いお子様のおもちゃもすっきり片付いています。

トイレ
階段下のスペースを利用したトイレです。シンプルに、お掃除しやすい商品を選びました。


洋室2
2階は各部屋にたっぷりと収納を備え付けました。

主寝室
何かと荷物は増えるもの。主寝室にはクローゼットが2つと物入も作りました。

リビングのソファでお昼寝中のお子様。これからこのお家ですくすく成長されるのが、本当に楽しみですね。



1F平面図

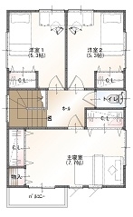
2F平面図

ご提案時イメージパース



  • フォトギャラリー

施工事例

エントリー一覧へ

  • お問い合わせはこちら
  • イベント情報はこちら
イベント情報

本文の終わりです