本文の始まりです

柳町平屋モデルハウス

販売終了

このモデルハウスの募集は終了致しました。

建物のポイント

20帖の広々としたLDKを中心に主寝室を含め4部屋の洋室があります。
洋室の1つは玄関ホールから直接出入りできるため、客間としても使いやすくなっています。
収納スペースもたっぷり確保しているので、お部屋がモノであふれて荷物置き場に…、なんてこともあ
りません!

プラン特徴


苅田町与原モデルハウス

販売終了

このモデルハウスの募集は終了致しました。


建物のポイント

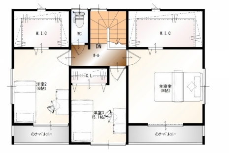
1階にはLDKの隣に洋室があります。
洋室は引戸を開ければLDKの続き間として使用できます。
在宅ワークのスペースにもなり、状況にあわせて使い分けられるのでとっても便利です!
2階には3部屋あり、すべての部屋にクローゼットを設けています。
LDKにあるスタディカウンターも、コンセント付きで在宅ワークに役立ちます。
そのうち2部屋には大容量のウォークインクローゼットを設置!
寝室がモノであふれて荷物置き場に…、なんてこともありません!

プラン特徴


  • フォトギャラリー
  • お問い合わせはこちら
  • イベント情報はこちら
イベント情報

本文の終わりです