本文の始まりです

I様邸(北九州市)

外観
優しい色合いの外観です。駐車スペースはコンクリートを打ち仕上げました。

玄関(外部)
外観とよくマッチした玄関ドアを選びました。

玄関(内部)
玄関ドアの明り取り小窓のおかげで、玄関ホールが明るい雰囲気になっています。


リビング
ソファを2台置いてもゆっくりとした広さです。リビング階段でいつでもご家族の気配を感じることができます。

ダイニング
リビングスペースとあえて分けましたが、ダイニングテーブルセットを置いてもゆっくりした広さを確保しました。

キッチン
シンプルなホワイト色を選びました。食洗器を設置し、家事が楽になりました。


洗面脱衣室
こちらもキッチン同様ホワイト色の洗面化粧台です。水廻りは清潔さが重要ですね。

浴室
一坪サイズの浴室も標準仕様です。淡いブルーのアクセントが入り、さわやかな空間になりました。

トイレ
1階のトイレは階段下スペースを活用しました。壁に手すりを取り付け、ご高齢の方も安全に利用できます。


主寝室
ゆったりベッドに寝ころんでテレビを見る・・・お客様のご希望がかなう空間です。

バルコニー
屋根があるインナーバルコニーは急な雨でもお洗濯物が濡れる心配がありません。

洋室1
各部屋に充分な大きさのクローゼットを設けました。


笑顔のお客様とお母様です。新築することでお母様孝行ができ、私どもも大変うれしく思います。



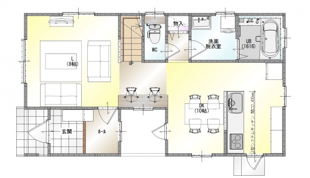
1F平面図

2F平面図

ご提案時イメージパース




  • フォトギャラリー

施工事例

エントリー一覧へ

  • お問い合わせはこちら
  • イベント情報はこちら
イベント情報

本文の終わりです