本文の始まりです

S様邸(行橋市)

外観
やわらかい印象の外観です。お庭でバーベキューをするのがS様のあこがれでした。

玄関
木のぬくもりを感じるような玄関ドア。外壁の色とも大変マッチしています。

玄関
お出かけ前に身だしなみのチェックを行えるよう玄関収納はミラー付を選びました。二人の娘様も大喜びです。


リビング
キッチンは吊り戸無しにしました。キッチンからの一体感が生まれ、LDKがより広く感じられます。

キッチン1
キッチンからリビング、そして和室まで見渡せます。

キッチン2
背面収納も併せて施工しました。充分な収納力でキッチン周りがスッキリと片付きます。


和室
リビングに面して和室をつくりました。濃い色のクロスを貼り、モダンな和室になりました。

洗面脱衣室
洗面化粧台は三面鏡タイプです。奥様も娘様たちにも好評です。

浴室
ゆっくり足がのばせる大きさの浴槽です。色はお好みのものを選んでいただきました。


トイレ
シンプルなトイレながら、照明デザインをこだわり、かわいらしい空間になりました。

洋室1
まだ幼い娘様のお部屋です。お母様をお部屋に招待し、仲良く遊べる空間です。

洋室2
中学三年生の娘様のお部屋です。集中して受験勉強もできますね。カーテンやクロスを自分で選び愛着のあるお部屋になりました。


主寝室
ご夫婦の寝室はシンプルに。選ばれたアクセントクロスがとてもおしゃれです。

お客様ファミリーと弊社担当の工家(くげ)です。S様、これからもどうぞよろしくお願いいたします!



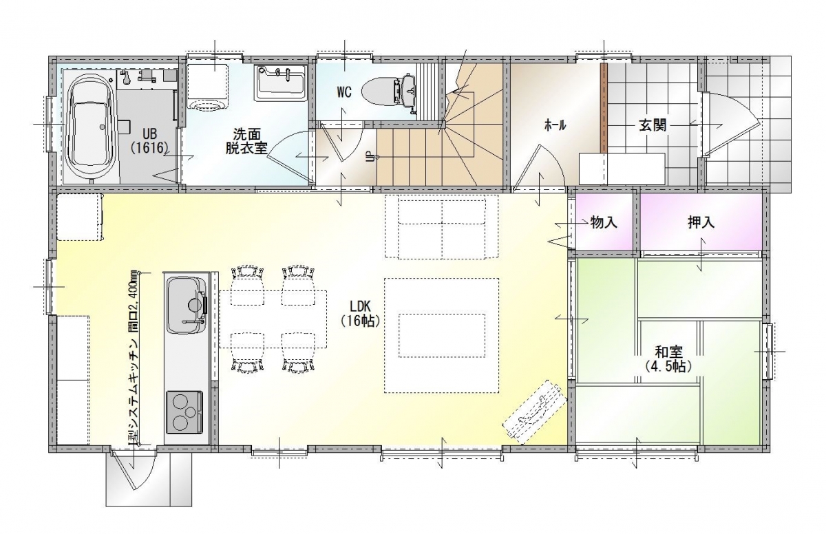
1F平面図

2F平面図



  • フォトギャラリー

施工事例

エントリー一覧へ

  • お問い合わせはこちら
  • イベント情報はこちら
イベント情報

本文の終わりです