本文の始まりです

S様邸(京都郡苅田町)

外観1
最初は全面改装のご相談でしたが、同等価格ならと築50年の2階建て住宅を平屋住宅に建て替えました。ご夫婦二人の生活、平屋が便利です。

外観2
「全て一新するのではなく、残せるところは残したい」とのS様のご要望で、大切に手をかけてきたお庭はそのまま残しました。

玄関
落ち着いた色を選び、飽きの来ないベーシックなデザインにしました。


リビング1
建替前に居間としていた場所にLDKを配置。くつろぎながら以前と変わらず美しいお庭が見え、大満足です。

リビング2
一日の多くを過ごすリビングは南からの陽の光が一日中降りそそぎ、家の中で一番明るい空間です。

リビング3
建具も床も落ち着いた色を選びました。お持ちの家具とも相性バッチリです。


キッチン
清潔感あふれるスペース。広々としてシンプルなキッチンで料理上手な奥様の腕もさらにアップしそうですね。

洗面脱衣室
1坪サイズの洗面脱衣室。かわいらしいピンクの洗面化粧台を選ばれたのは明るく元気な奥様です。

浴室
こちらも1坪サイズの広々お風呂。趣味の卓球や畑仕事で疲れた体も、ゆったりとした浴槽で毎日癒していただけます。


トイレ
シンプルで使いやすいトイレ。お掃除のしやすさもポイントです。

和室
S様のご希望で和室は二部屋作りました。やはり和室は落ち着きますね。

洋室
多趣味なご夫婦はパソコン操作もお手の物。パソコンデスクを置いてもゆっくりした広さが確保できる洋室です。



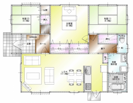
平面図



  • フォトギャラリー

施工事例

エントリー一覧へ

  • お問い合わせはこちら
  • イベント情報はこちら
イベント情報

本文の終わりです