本文の始まりです

M様邸(北九州市八幡東区)

外観
南欧風に仕上げたあたたかみのある外観。元気のいい男の子二人が遊ぶお庭も出来ました。

玄関
ミストグリーン色の玄関ドアが、淡い色の外観とマッチしています。

玄関ホール
濃淡がはっきりとした配色がとてもおしゃれです。


LDK
レンガ調のクロスが印象的なLDK。床をホワイト色にしているのでより広く感じられます。

LDK
勾配天井が特徴的なリビングは、上部が吹き抜けになっています。

LDK
勾配天井には天窓を取り付けました。陽の光が降りそそぎ、リビングの明るさが増します。


キッチン
キッチンはTOTOのミッテを選びました。小さなお子様がいらっしゃるので火を使わないIHクッキングヒーターが安全です。

洗面脱衣室
1坪の広さを確保しました。床はテラコッタ調のシートを選びました。

浴室
こちらもゆったり1坪サイズです。ご家族そろって入浴されても充分な広さです。


トイレ
こだわりのクロスはミッキーマウス!

主寝室
主寝室は1階にあります。広いウォークインクローゼットもあり、部屋全体がすっきりと片付きます。

洋室1・2
2階の洋室はもともと2部屋ですが、壁を撤去し1部屋にしました。


洋室1・2
同じ間取りが2つ並んだお子様の部屋です。お子様が選んだクロスもとってもおしゃれ!

洋室1・2
出入口ドアは2つとも残し、お子様たちが成長したら間仕切壁を造るだけで、各自が独立したお部屋をもてるようにしました。



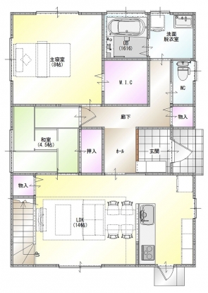
1F平面図

2F平面図


必要項目をご記入・ご選択後「入力内容を確認する」ボタンをクリックして入力内容をご確認ください。
必須がついた項目は必ず入力してください。

お客様情報をご入力ください。

 
 
都道府県(必須)
市区町村・番地(必須)
建物名・部屋番号
電話番号(必須)
メールアドレス(必須)
ご希望日時:第1希望(必須)     時頃
ご希望日時:第2希望(必須)     時頃

ご相談内容をご入力ください。

ご入力、ご提供いただきます個人情報は株式会社ハウジングプラザのプライバシーポリシーに基づき管理させていただきます。

フォーム送信が正常に行われない場合

フォーム送信が正常に行われない方は、お手数ですがフリーダイヤル0120-849-017にお問い合わせください。

  • フォトギャラリー

施工事例

エントリー一覧へ

  • お問い合わせはこちら
  • イベント情報はこちら
イベント情報

本文の終わりです