本文の始まりです

K様邸(北九州市門司区)

外観
どんな年代の方にも好まれるシンプルな外観です。並列で3台分の駐車場を確保しました。

玄関
大容量の玄関収納です。飾り棚に何を飾るかワクワクしますね。

リビング
リビング階段と畳スペースが特徴的な明るいリビングです。


リビング(畳コーナー)
ちょっと横になりたい時や、小さなお子様のお昼寝スペースにも使える便利な畳コーナーです。

キッチン
何かと物が増えるキッチンはシンプルながらも収納力のあるものを選びました。IHクッキングヒーターを採用し、安全面も考慮しました。

キッチン
リビング側から見たキッチンスペース。背面収納も設置しました。これだけの収納があれば食器棚を置く必要なく広く使えます。


トイレ
TOTO製のトイレ。無駄な機能がないシンプルな商品です。お子様やご高齢の方にも使いやすいです。

洗面脱衣室
洗面化粧台もTOTO製です。お掃除しやすくいつも清潔に保てます。

浴室
足を伸ばしてもゆっくり入れる浴槽です。浴槽内に段差があるタイプで、お湯のなかで伸ばした足を置いたり、腰かけて半身浴をしたりもできます。


洋室(1)
5.1帖とコンパクトなお部屋ですが、机とベッドは充分に置ける広さです。クローゼットも設置しています。

洋室(2)
明るい洋室です。ご家族がそれぞれのお部屋を持つことができ、大変喜んでいただけました。

主寝室
バルコニーに面した主寝室です。出入口を引き戸にしたことで、家具の配置がしやすくなりました。


階段
階段部分にも小さな窓を付けました。もちろん手すりも標準でついています。この階段を降りると、リビングに直接つながっています。



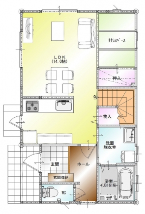
1F平面図

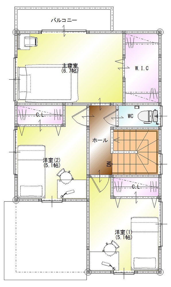
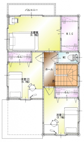
2F平面図


必要項目をご記入・ご選択後「入力内容を確認する」ボタンをクリックして入力内容をご確認ください。
必須がついた項目は必ず入力してください。

お客様情報をご入力ください。

 
 
都道府県(必須)
市区町村・番地(必須)
建物名・部屋番号
電話番号(必須)
メールアドレス(必須)
ご希望日時:第1希望(必須)     時頃
ご希望日時:第2希望(必須)     時頃

ご相談内容をご入力ください。

ご入力、ご提供いただきます個人情報は株式会社ハウジングプラザのプライバシーポリシーに基づき管理させていただきます。

フォーム送信が正常に行われない場合

フォーム送信が正常に行われない方は、お手数ですがフリーダイヤル0120-849-017にお問い合わせください。

  • フォトギャラリー

施工事例

エントリー一覧へ

  • お問い合わせはこちら
  • イベント情報はこちら
イベント情報

本文の終わりです